Tỷ suất lợi nhuận lên tới 10%/năm
nhờ nguồn cầu thuê nhà dồi dào của chuyên gia nước ngoài tại Thủ phủ FDI – thành phố Hải Phòng.
Dịch vụ quản lý quốc tế CBRE,
tiêu chuẩn đầu tư cao cấp và uy tín của DOJI LAND,
đón đầu chuẩn sống hiện đại và đẳng cấp của giới tinh hoa phố Cảng.
Trong tổ ấm chu toàn mọi phong cách sống, tích hợp
tiêu chuẩn bàn giao Smarthome Deluxe và tổ hợp 36 tiện ích“may đo” ngay ngưỡng cửa.

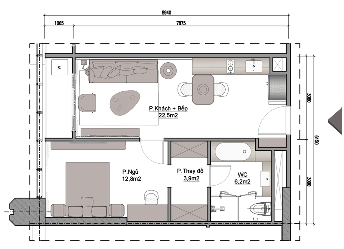
Phòng Khách và Phòng Ngủ được đặt cạnh ban công để lấy ánh sáng, khí tươi và tận dụng tầm view.
Phòng Ngủ được thiết kế thông với Phòng thay đồ hiện đại và Phòng tắm khép kín, phục vụ hoàn hảo nhu cầu cá nhân của những chủ nhân hiện đại và biết hưởng thụ cuộc sống.
Phòng khách và Bếp liên thông, đáp ứng nhu cầu sử dụng linh hoạt, bàn ăn thiết kế thông minh có thể mở rộng cho nhu cầu 5-6 ghế trong trường hợp có thêm khách.
Phòng ngủ cách biệt với phòng khách bằng vách kính và có thể mở thông ra khu vực ban công.
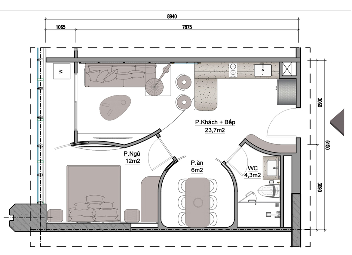
Phòng giải trí đa năng được thiết kế đặc biệt với bộ salon tròn và kệ tủ có thể bố trí thành khu vực hát karaoke, khu vực ngồi đọc sách, nghe nhạc,….
Phòng khách và Bếp liên thông, đáp ứng nhu cầu sử dụng linh hoạt, bàn ăn thiết kế thông minh có thể mở rộng cho nhu cầu 5-6 ghế trong trường hợp có thêm khách.
Phòng khách và Phòng ngủ được bố trí cạnh ban công để lấy ánh sáng, khí tươi và tận dụng tầm view.
Phòng ngủ tách biệt với phòng khách bằng vách kính và có thể mở thông ra khu vực ban công.
Không gian 1+ được bố trí thành phòng ăn riêng, được thiết kế đặc sắc. Ngoài ra còn có khu vực quầy bar cạnh bếp, phục vụ những bữa tiệc tại gia của các chủ nhân phố Cảng sành điệu biết hưởng thụ.
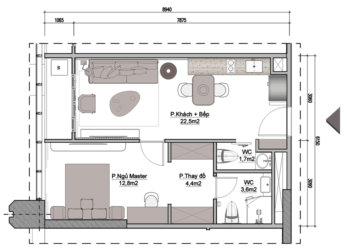
Phòng khách và Phòng ngủ được bố trí cạnh ban công để lấy ánh sáng, khí tươi và tận dụng tầm view.
Phòng ngủ được thiết kế thông với Phòng thay đồ và WC, phục vụ hoàn hảo nhu cầu cá nhân của những chủ nhân hiện đại và biết hưởng thụ cuộc sống.
Phòng khách và Bếp liên thông, đáp ứng nhu cầu sử dụng linh hoạt, bàn ăn thiết kế thông minh có thể mở rộng cho nhu cầu 5-6 ghế trong trường hợp có thêm khách.
WC thứ 2 được thiết kế nhỏ gọn cạnh khu vực bếp và phòng khách để thuận tiện khi gia chủ sinh hoạt tại khu vực bên ngoài hoặc sử dụng cho khách.
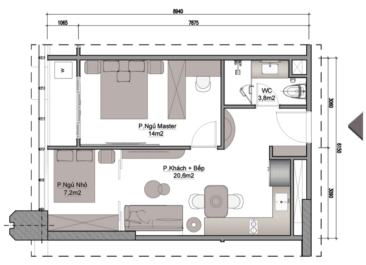
2 Phòng ngủ đều được bố trí cạnh ban công để lấy ánh sáng, khí tươi và tận dụng tầm view.
Phòng ngủ master được thiết kế tinh tế với góc trang điểm được bố trí ngăn với không gian ngủ bằng vách tủ, sát bên khu WC đáp ứng hoàn hảo nhu cầu cá nhân của một gia đình trẻ hiện đại.
Phòng ngủ nhỏ được trang bị đầy đủ tiện ích phục vụ sinh hoạt cho một người trưởng thành (có thể sử dụng làm phòng ngủ cho con, phòng ở cho khách, phòng cho giúp việc, …)
Phòng khách và Bếp liên thông, đáp ứng nhu cầu sử dụng linh hoạt, bàn ăn thiết kế thông minh có thể mở rộng cho nhu cầu 5-6 ghế trong trường hợp có thêm khách.
Phòng khách và Phòng ngủ Master được bố trí cạnh ban công để lấy ánh sáng, khí tươi và tận dụng tầm view.
Phòng ngủ Master được thiết kế thông với P.Ngủ Phụ bằng cửa trượt để thuận tiện cho chủ nhân là người lớn tuổi khi cần sự trợ giúp của người giúp việc mà vẫn đảm bảo sự riêng tư hoặc cặp vợ chồng trẻ có con nhỏ cần chăm sóc nhưng vẫn có không gian riêng.
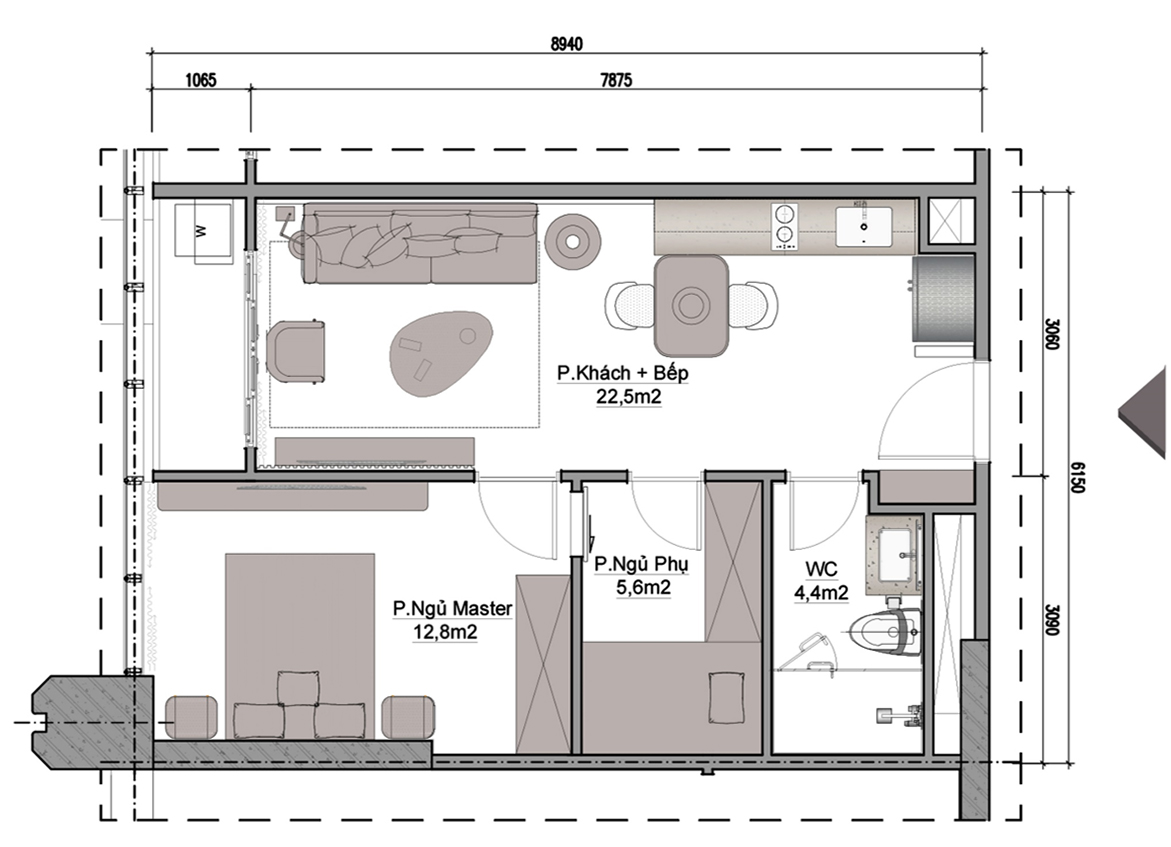
Phòng khách và Bếp liên thông, đáp ứng nhu cầu sử dụng linh hoạt, bàn ăn thiết kế thông minh có thể mở rộng cho nhu cầu 5-6 ghế trong trường hợp có thêm khách.
Phòng khách và Phòng ngủ Master được bố trí cạnh ban công để lấy ánh sáng, khí tươi và tận dụng tầm view.
Phòng Ngủ Master và Phòng Ngủ nhỏ được thiết kế cách nhau bằng WC, thuận tiện cho việc sử dụng chung mà vẫn đảm bảo sự riêng tư.
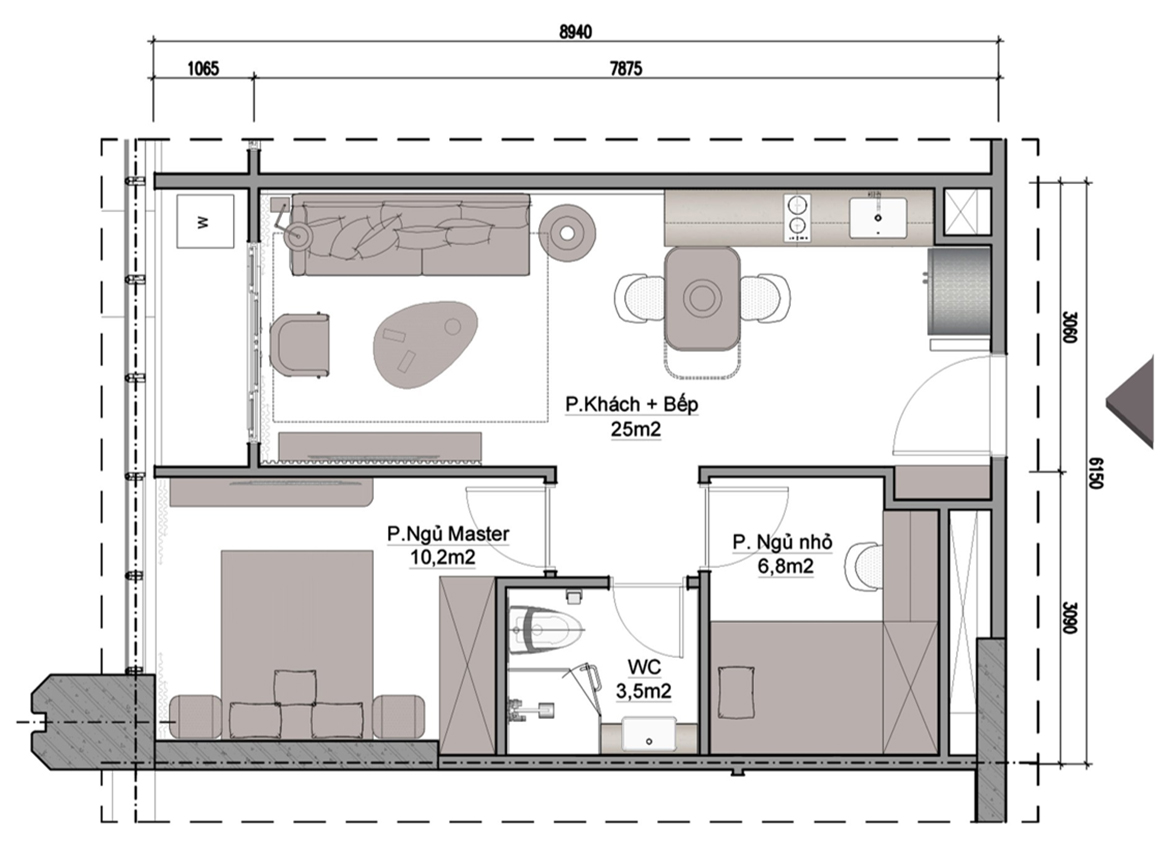
Phòng khách và Bếp liên thông, đáp ứng nhu cầu sử dụng linh hoạt, bàn ăn thiết kế thông minh có thể mở rộng cho nhu cầu 5-6 ghế trong trường hợp có thêm khách.
Phòng ngủ nhỏ với công năng linh hoạt được thiết kế thêm bàn học, phù hợp cho không gian học tập của trẻ em, hoặc phòng nghỉ cho khách tới chơi, vợ chồng trẻ có con mới sinh cần người giúp việc chăm sóc, hoặc người già cần người chăm sóc, hoặc khách đến chơi.
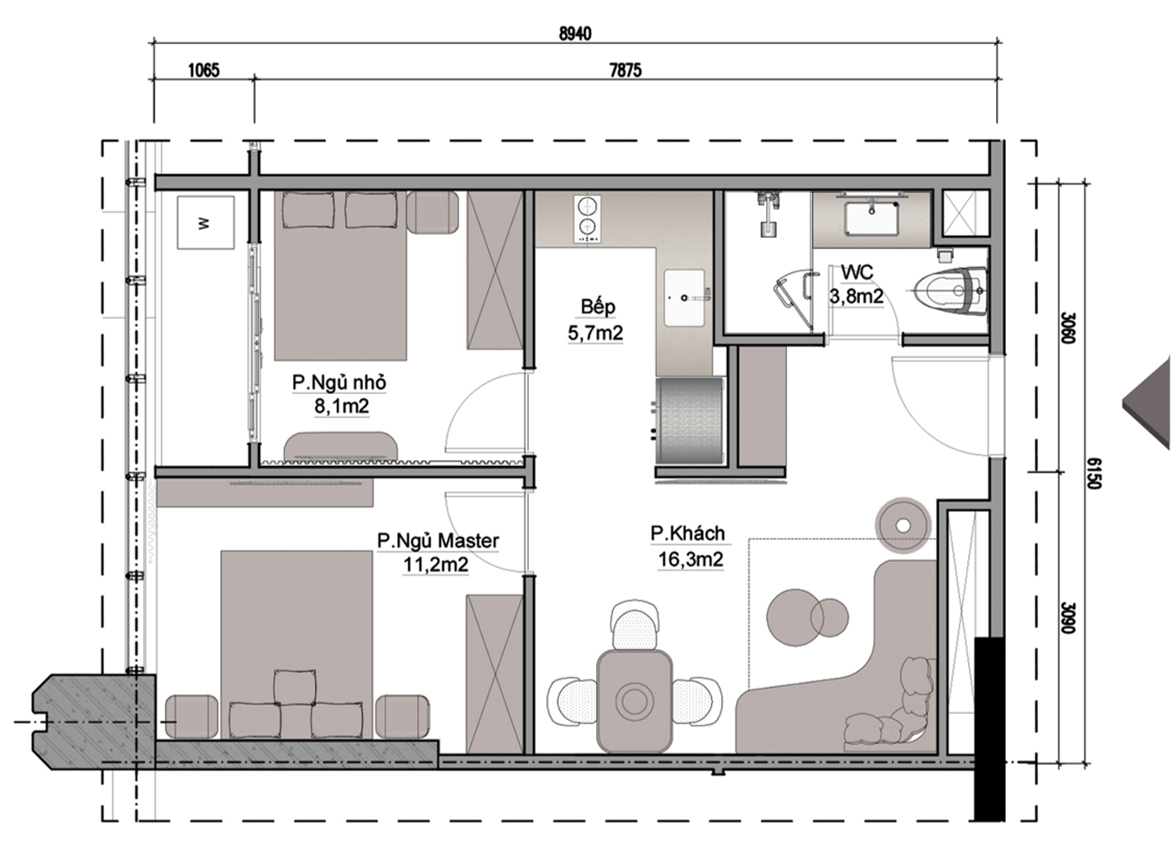
Phòng ngủ nhỏ được trang bị đầy đủ tiện ích phục vụ sinh hoạt cho một người trưởng thành (có thể sử dụng làm phòng ngủ cho con, phòng ở cho khách, phòng cho giúp việc, …).
2 Phòng ngủ đều được bố trí cạnh ban công để lấy ánh sáng, khí tươi và tận dụng tầm view.
Phòng khách và Bếp liên thông, đáp ứng nhu cầu sử dụng linh hoạt, bàn ăn thiết kế thông minh có thể mở rộng cho nhu cầu 5-6 ghế trong trường hợp có thêm khách.
Bước vào căn hộ là không gian tiền phòng được thiết kế như một không gian sảnh nhỏ, gọn trước khi tiến vào khu vực phòng khách, giúp không gian nhà sang trọng hơn.


Diamond Crown Complex Hai Phong
- Chủ đầu tư
Công ty CP Hải Phòng Invest - Đơn vị phát triển dự án
DOJI LAND - Đơn vị phát triển kinh doanh
WELAND
- Vị trí:
Thửa số 03 lô 3C - KĐTM Ngã Năm sân bay Cát Bi, P. Đông Khê, TP. Hải Phòng - Hotline: 18000 88896
* Thông tin, hình ảnh, các tiện ích trên website chỉ mang tính chất tương đối và có thể được điều chỉnh theo quyết định của Chủ đầu tư tại từng thời điểm đảm bảo phù hợp quy hoạch và thực tế thi công Dự án.























